

E - SERIES
Residential Space Capsule Home
The E Series is a space capsule residential product developed by ETONG to address long-term living requirements.
The product is completely manufactured and assembled in the factory, allowing for rapid deployment and use upon transportation to the site.
The interior integrates a bedroom, bathroom, living room, and a kitchen pre-installation area, fulfilling complete living needs while maintaining a compact and efficient spatial layout.
PRODUCT APPEARANCE
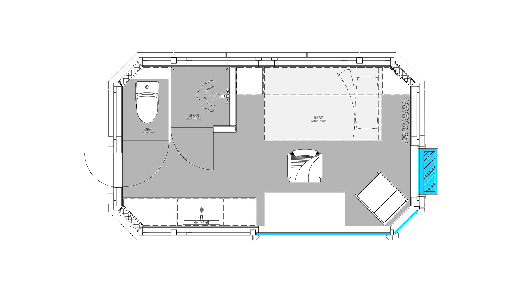
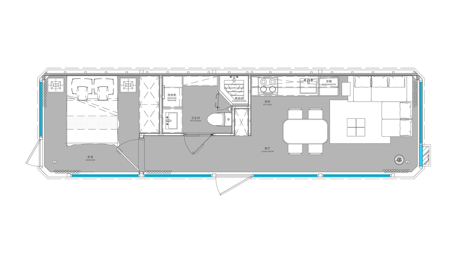
MODEL E Β FLOORPLANS
2D Layout Diagram of Interior Space: Plan flexibly based on labeled positions of walls, doors, and windows, or achieve further customization by modifying base configurations.
VIDEO INTRODUCTION
ETONG Brand Ambassador Susu will provide you with a detailed introduction to the various products in the E Series.
































